Basement Unit 1, 50-52 Ludgate Hill, St Paul's, London, EC4M 7AW

Partially Fitted Basement Central Production Prep Kitchen - New Lease
To Let on application
3,000 sq ft - 6,004 sq ft
other
Jon Morell
Commercial Agency
Joel Barnes

Key features

  • Dedicated loading and servicing bay
  • Extraction
  • Staff area
  • Potential to sub divide
  • Air conditioning
  • 7 fridge/freezers installed
  • WC and showers
  • Office

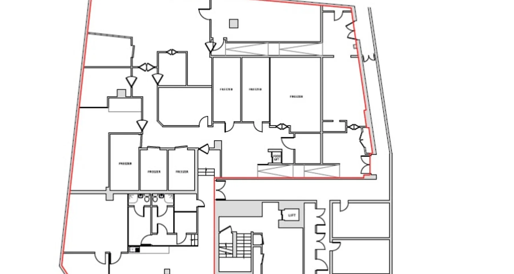
Description

The premises is arranged over Basement only, providing a partially fitted central production kitchen with air conditioning, 7 fridge/freezer cold stores and full extraction. There is also a staff area with office, kitchen, showers and W.C. The premises benefits from a dedicated building loading and servicing bay.

The basement unit is located at One New Ludgate, a 365,000 sq ft office scheme, in close proximity to Ludgate Hill, Fleet Street, Paternoster Square and St Paul's Cathedral. This is a vibrant area supporting a diverse retail and F&B offering, with local occupiers including: Chop House, Ozone Coffee, Leon, Charles Tyrwhitt, Terra Rossa, Cote Brasserie and Wagamama. Local public connections are excellent being situated opposite City Thameslink Station, with Blackfriars and St Paul’s Underground Stations within a short walk.

Request a viewing

Alphanumeric and special characters (-_.) are only allowed.
Alphanumeric and special characters (-_.) are only allowed.
Enter a valid phone number, Ex: 01234 567 890.
Enter the enquiry message.
By clicking submit enquiry you agree to our privacy policy. You can change your requirement or unsubscribe at any time.