14 Cross Street, Padstow, Cornwall, PL28 8AT
Property Description
The property is located in the heart of Padstow, North Cornwall, in a residential Conservation area. It is Grade II listed, and situated on the north side of Cross Street (B3276), 40m from the junction with the High Street. Padstow Harbour is 150m to the east, and Harbour Cove Beach, is 800m to the north. The property comprises a two bedroom terraced house, which has been sympathetically modernized and has a store and small yard area on the other side of Cross Street.
Freehold
(Measurements based on EPC)
Whilst Strettons have not internally inspected the property we understand it to comprise:
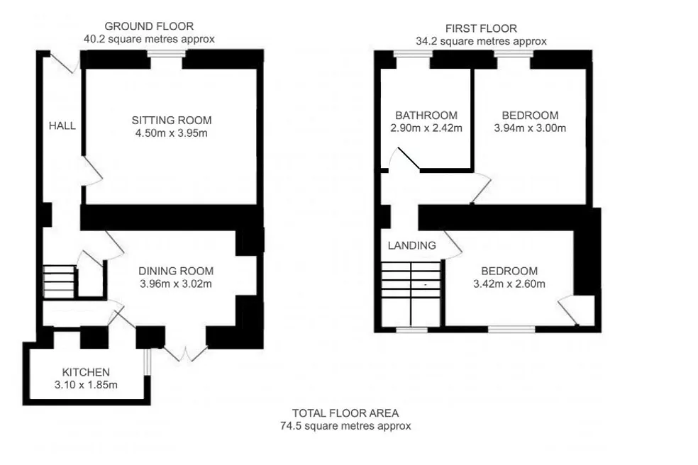
Ground Floor: Living room, dining room, kitchen and hallway.
First Floor: Two bedrooms, bathroom/toilet, and landing.
TOTAL: 818 Sq Ft (76 Sq M)
OFFERED VACANT
Auction Surveyor: Rob Hills
Contact : 0207 614 9933
Robert.hills@strettons.co.uk
Joint Auctioneer:
* The Notice to Bidders, which can also be seen on the inside front cover of the hard copy catalogue, includes a definition of Guide Price [section #16] Note that in addition to the purchase price there is a buyer’s administration fee [section #11] and there may be additional non-optional fixed or variable fees and costs [section #12]. To establish the full cost of purchasing a property, please inspect the legal documentation/special conditions. Please also check strettons.co.uk for updates.

